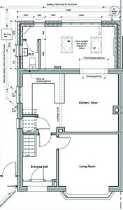
Ground Floor Extension

Ground floor extension, demolition of existing structure and construction of WC/playroom with bi folding doors to the rear garden, the new build was close to an adjacent neighbours conservatory completed in 6 weeks!